MAIN
Photography
Portfolio Shots
Álvaro Siza projects
Eduardo Souto de Moura projects
Newark, NJ
New York City
Skateboarding
Street
Brutalism
Vermont, USA
Minimal
Projects
Portugal Home 03
Country Home 01
City Home 01
House 27
Student Housing
Health Clinic
Color Study
Vertical Housing
Micro Unit
House + Studio
Horizontal Housing
Wall Designs
Pattern Study
Sketches
Info
Jack Lares
MAIN
Photography
Portfolio Shots
Álvaro Siza projects
Eduardo Souto de Moura projects
Newark, NJ
New York City
Skateboarding
Street
Brutalism
Vermont, USA
Minimal
Projects
Portugal Home 03
Country Home 01
City Home 01
House 27
Student Housing
Health Clinic
Color Study
Vertical Housing
Micro Unit
House + Studio
Horizontal Housing
Wall Designs
Pattern Study
Sketches
Info
with Danny Alemany
fall 2016
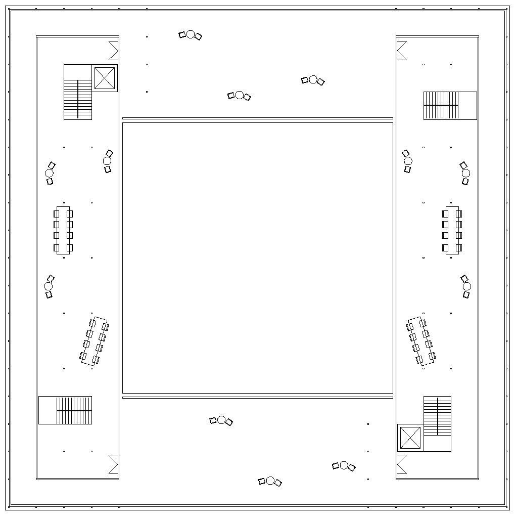
Housing project.
Final model
Floor plans
Sections
Structure and circulation diagrams
↑
Back to Top